O objetivo deste projeto é proporcionar um espaço que permita a educação das crianças, jovens e adultos, de forma integrada ao meio ambiente. Neste espaço, além das atividades escolares, acontecerão workshops formativos voltados para a potencialização da produção cacaueira familiar, ações ambientais como preservação e integração ecológica com a mata atlântica, ações permaculturais, culturais, dentre muitas outras.
The objective of this project is to provide a space that allows the education of children, young people and adults, in an integrated way with the environment. In this space, in addition to school activities, training workshops will take place aimed at enhancing family cocoa production, environmental actions such as preservation and ecological integration with the Atlantic forest, permacultural and cultural actions, among many others.



A obra da escola no assentamento João Amazonas começou em 2022, quando iniciamos os testes e produção dos adobes. No total, foram 12.000, todos produzidos no assentamento, com moradores da comunidade. Tive a chance de morar no assentamento durante os sete primeiros meses de trabalho. A obra como um todo foi bastante desafiadora para todos nós. Em um contexto de difícil acesso, constantes quedas de energia, lacuna de profissionais especializados em obra, inexperiência na parte de todos em produção de adobes, chuvas constantes, baixo orçamento, dentre tantas outras questões, conseguir finalizar a escola é realmente um marco em nossas vidas. O coração desta obra é Seu Rubens, exímio Mestre de obras, figura importante para a comunidade, do qual eu criei um carinho muito grande, e cuja presença foi e segue sendo fundamental para o bom andamento do trabalho. Esta obra visa atender a comunidade do assentamento e as redondezas, e foi financiada através de doações cuja captação foi feita pela ONG Global Social Brasil, principalmente nas pessoas de Joice Andrade, Washington Landin e Axel Brummer. Aproveito para agradecer à Arq. Bárbara Silva , Ana de Carli e Arq. Márcio Holanda pelas incansáveis orientações sobre adobes e à Rafael Teixeira pela oficina de adobes com a comunidade.



A construção será dividida em três etapas:
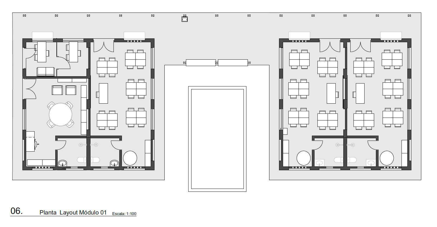
Escola, módulo 1, contará com uma escola para as crianças em idade escolar que compreende os ensinos infantil (Grupo 2 a Grupo 5), Fundamental I (1 ano a 5 ano);
Biblioteca, módulo 2, Sala Cultural e sala Mata Atlântica, com biblioteca e informática;
Sala multiuso, módulo 3 espaço voltado para aulas EJA (Educação de Jovens e Adultos).
Escola, módulo 1, contará com uma escola para as crianças em idade escolar que compreende os ensinos infantil (Grupo 2 a Grupo 5), Fundamental I (1 ano a 5 ano);
Biblioteca, módulo 2, Sala Cultural e sala Mata Atlântica, com biblioteca e informática;
Sala multiuso, módulo 3 espaço voltado para aulas EJA (Educação de Jovens e Adultos).

O projeto da escola no Assentamento João Amazonas prevê quatro salas, cada uma com banheiro, visando atender turmas da educação infantil. Uma vez que o recurso para a execução foi 100% de doações, o desenho da escola foi pensado para viabilizar a execução por etapas, em caso de interrupção de recurso. Apesar de ser zona de mata atlântica, abundante em água, a comunidade carece de acesso à água tratada. Foi proposta a captação de água de chuva como uma das fontes de abastecimento de água para a escola. A cisterna que recebe esta água fica localizada no pátio central, entre as salas. Os banheiros direcionam o esgoto para o biodigestor que garante o saneamento ecológico, ou seja, trata localmente os efluentes sem poluir os lençois freáticos. As janelas e portas são de reuso e todas as paredes são estruturais, de adobe, rebocadas com argamassa de terra, areia e cal, e pintadas com tinta à base de terra e cola.

Planta baixa do módulo 2, da biblioteca


Modelo maquete do módulo 3, sala multiuso, na foto, arquiteta Akemi Tahara, responsável pela concepção estrutural em bambu

Produção dos 12.000 adobes para a construção da escola.
Para a execução deste projeto, contamos com a participação ativa da comunidade, onde todos os construtores são assentados. Desta forma, a construção se torna realmente coletiva, participativa e a comunidade se sente pertencente e autora do espaço construído.
Um dos objetivos da proposta construtiva do projeto é permitir que o próprio canteiro de obras seja também um espaço formativo. A intenção ao implementar uma diversidade de técnicas é que haja uma capacitação por parte da comunidade, permitindo que haja incorporação das tecnologias e sua possível replicação futuramente, de modo autônomo, nas construções particulares de cada um.
Assim, além de tecnologias de baixo impacto serem disseminadas, a economia circula dentro do assentamento.




Registro da sala, durante a obra da escola. Foto: Kin Guerra

Foto: Kin Guerra
Foi feito uma Avaliação de Ciclo de Vida (ACV), estudo que avalia os impactos ambientais de uma construção desde a obtenção de seus materiais até os 60 anos futuros de uso, e o escritório responsável pelo estudo apontou que o projeto da escola, a partir das diferentes tecnologias implementadas, tem uma redução de 68% na emissão de gases efeito estufa. Este estudo comprova que a implementação destas tecnologias, de fato, garante uma redução significativa no impacto ambiental desta construção.

Foi feito um estudo de Avaliação de Ciclo de Vida (ACV) de nosso projeto escolar, por uma empresa especializada, e os resultados nos mostraram 68% a menos de emissão de gases de efeito estufa para a construção e uso de nossa escola.

Obra em andamento.

Pintura de inauguração na escola do assentamento João Amazonas, por nosso amigo indiano Kaushik. Registros de fevereiro, quando a escola foi inaugurada. Em cada folha foram escritos os nomes de pessoas que trabalharam no projeto e que doaram dinheiro para a escola estar de pé. Após quase dois anos de trabalhos intensos, um sonho se realizou.




Ficha técnica
Realização: ONG Global Social Brasil e Assentamento João Amazonas
Projeto arquitetônico: Arq. Leticia Grappi
Desenhos: Arq. Léo Bahia
Projeto estrutural: Arq. Daniel Marostegan
Projetos complementares: Porelli Empreendimentos
Mestre de Obras: Rubens Gomes
Acompanhamento de obras&gestão: Leticia Grappi, Bruna Porelli e ONG Global Social
Consultoria cromática das tintas: Moacyr Gramacho
Esquadrias: Arquivo
Toda a equipe construtiva é do assentamento:
Pedreiro Paulo Santos
Pedreiro Daniel Silva Santos
Pintor: Odair
Hélio Carlos Souza Xavier
Ronaldo Silva Santos
Alex Júnior Santana dos Santos
Rubens Gomes da Silva
Alex Ferreira dos Santos
Jurandir Cardeal Santos
Daniel
Weslei de Jesus brito
Leandro de Brito Araújo
Anderson
Afanásio Santos
Domingos Almeida
Adriano Santos de Araújo
Ubiratan
Tailan
Anderson Santana Oliveira
Jean
Hélio
José Roberto Silva dos Santos
Realização: ONG Global Social Brasil e Assentamento João Amazonas
Projeto arquitetônico: Arq. Leticia Grappi
Desenhos: Arq. Léo Bahia
Projeto estrutural: Arq. Daniel Marostegan
Projetos complementares: Porelli Empreendimentos
Mestre de Obras: Rubens Gomes
Acompanhamento de obras&gestão: Leticia Grappi, Bruna Porelli e ONG Global Social
Consultoria cromática das tintas: Moacyr Gramacho
Esquadrias: Arquivo
Toda a equipe construtiva é do assentamento:
Pedreiro Paulo Santos
Pedreiro Daniel Silva Santos
Pintor: Odair
Hélio Carlos Souza Xavier
Ronaldo Silva Santos
Alex Júnior Santana dos Santos
Rubens Gomes da Silva
Alex Ferreira dos Santos
Jurandir Cardeal Santos
Daniel
Weslei de Jesus brito
Leandro de Brito Araújo
Anderson
Afanásio Santos
Domingos Almeida
Adriano Santos de Araújo
Ubiratan
Tailan
Anderson Santana Oliveira
Jean
Hélio
José Roberto Silva dos Santos
